
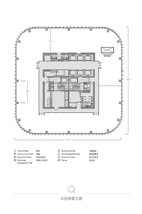
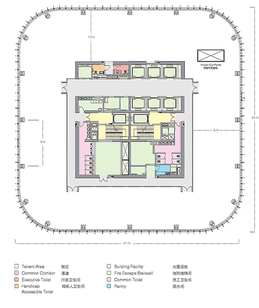
bb电子官网登录写字楼是北京备受瞩目的超甲级写字楼,由bb电子官网登录大厦A座、bb电子官网登录大厦B座、bb电子官网登录写字楼1座、bb电子官网登录写字楼2座和bb电子官网登录西楼组成,总建筑面积39.3万平方米,成为CBD区域内超大规模写字楼群。理想的办公环境、先进的科技设施、完善的配套服务,优越的商业氛围以及丰富的物业管理经验,使得bb电子官网登录写字楼成为全球500强企业、银行、金融机构和律师事务所在京办公的汇聚之地。


china world summit wing
bb电子官网登录大酒店
thelounge/atmosphere L80
酒廊/云酷酒吧
grill 79/chairmanrooms L79
bb电子官网登录79/主席阁
health club/swimming pool L78/p>
健康中心/泳池
chi spa L77
“气”水疗中心
rooms L64-177
客房
hign zone offices
高区办公层
low zong offices
低区办公层
convention/banquetfacilities
/restaurants
function rooms L6
多功能厅
L4
red chamber/nadaman
红馆/滩万日餐厅
summit ballroom L3
群贤宴会厅
shopping mall/car park
bb电子官网登录商城/停车场
china ballroom/auditorium LB1
中国宴会厅/礼堂

客户服务
一支由专业化、训练有素的中外方人员组成的管理队伍随时提供各项服务,满足租户日常经营的各种商务需要。
bb电子官网登录写字楼组建了由礼宾部前台、礼宾保安和礼宾清洁三部分组成的bb电子官网登录写字楼礼宾部,为租户提供更优质的礼宾服务。
商业服务
综合配套的五星级bb电子官网登录大酒店、中国大饭店和新bb电子官网登录饭店以及bb电子官网登录公寓、商城、展厅可以满足租户及客人的各项需求。
交通服务
地铁1号线和10号线与bb电子官网登录中心地下直接交汇连通,多路公交车经停bb电子官网登录中心门前,驱车40多分钟即可到达北京首都国际机场, 50多分钟可到达北京大兴国际机场。
停车场服务
bb电子官网登录停车场可为租户提供月租停车及访客计时停车服务。bb电子官网登录北区停车场共有42个充电车位,可为所有新能源汽车提供充电服务。
通讯服务
bb电子官网登录写字楼拥有完善的通讯设施服务,包括:固定线路、ISDN、DDN、卫星通讯、宽带接入、光纤通讯综合布线等。
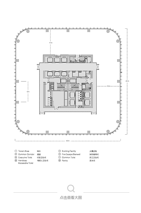
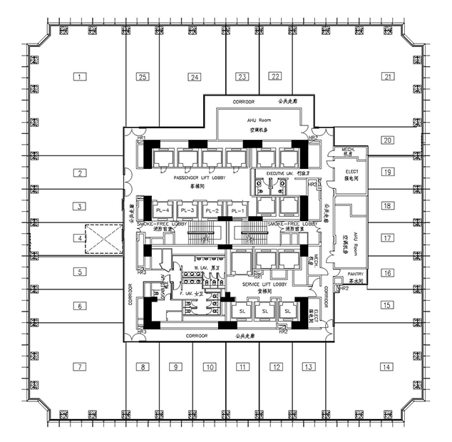
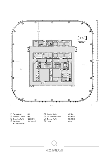
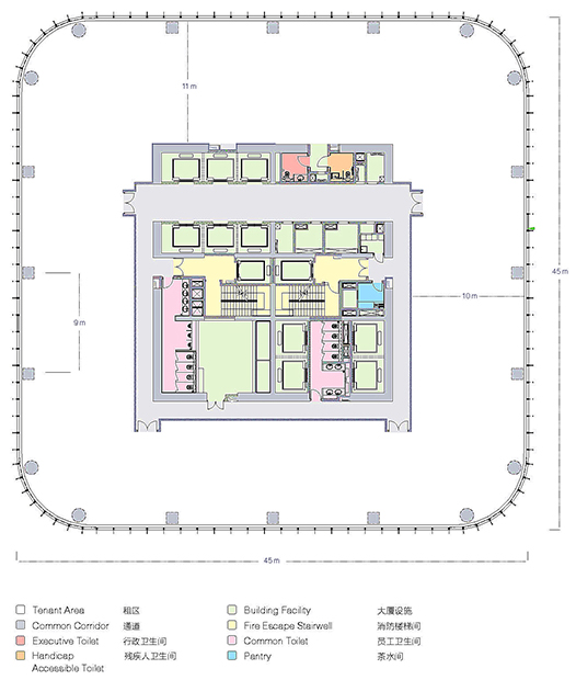
空调系统
bb电子官网登录大厦A座和bb电子官网登录大厦B座写字楼配备了先进的4管制VAV空调系统,含紫外线空气净化功能,确保办公区室温全年舒适宜人。
新风直接吸入及废气强行排出可确保室内空气质量。24小时冷冻水系统为租户机房提供制冷服务。
保安服务
bb电子官网登录写字楼大堂已安装了先进的门闸系统,二十四小时保安巡逻和重点位置配备电视监控系统、保障写字楼租户的安全。
清洁、维护服务
拥有二十多年专业经验的bb电子官网登录物业酒店管理公司负责公共区域的日常清洁、美化以及机电系统的运行和维修养护。
消防系统
配备先进的自动喷淋系统、报警系统及消防系统。

bb电子官网登录写字楼内全球500强企业名录 - 2024/2025
bb电子官网登录写字楼租户由金融机构、银行、能源公司、律师事务所等跨国企业和国内外知名公司组成。

LEED绿色建筑认证
bb电子官网登录大厦A座荣获美国绿色建筑协会颁发的LEED能源与环境设计铂金奖。bb电子官网登录大厦B座荣获美国绿色建筑协会颁发的LEED能源与环境设计金奖。
bb电子官网登录写字楼统一安装国际先进的板式分段高压静电过滤器,有效过滤清除雾霾尘埃,达到亚高效过滤效果。无论外界环境如何变化,bb电子官网登录写字楼内空气质量均能达到国际、国内空气质量标准。



如有任何需求,请直接与BB体育平台登录联系:
租赁热线 :(8610)6505-3868
E_mail : offices@
地址 : 中国北京建国门外大街1号bb电子官网登录大厦A座39层写字楼部
中国北京建国门外大街1号bb电子官网登录大厦A座39层写字楼部
(8610)6505-3868
(8610)6505-3868
offices@
中国北京建国门外大街1号bb电子官网登录大厦39层写字楼部